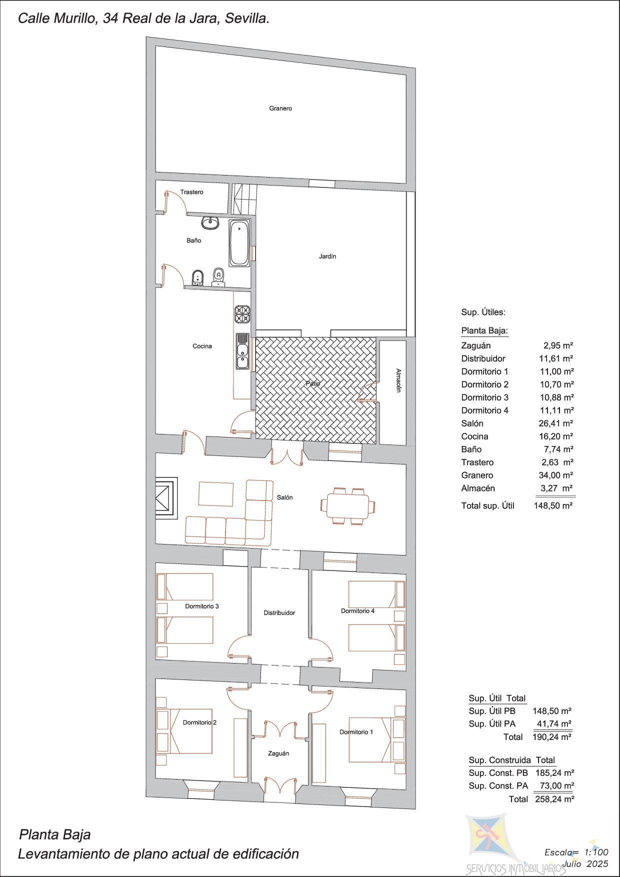
Se vende gran casa con patio posterior y una construcción adicional en bruto. La vivienda se desarrolla en planta baja con 4 habitaciones, un salón-comedor, cocina y baño. Por el patio mitad solado, mitad terrero se tiene acceso al antiguo baño (hoy almacén), la construcción adicional en bruto de dos plantas y a una amplia azotea desde a la que se accede al soberao de la vivienda. Precisa pequeña reforma para actualización de la vivienda.
AVISOS LEGALES
Vendemos inmuebles, NO están INCLUÍDOS: mobiliario, electrodomésticos, enseres y vehículos que puedan verse en las fotografías.
EN VENTA:
1.Documento informativo no contractual conforme a la Ley 10/2025, de 26 de diciembre, por la que se regulan los servicios de atención a la clientela. El precio final completo indicado incluye los honorarios de intermediación inmobiliaria.
2. El precio NO incluye los gastos notariales y registrales que establecen Notaría y Registro según ley/arancel.
3.NO están incluidos los impuestos derivados de la transmisión, ITP/IVA/AJD en segundas y ulteriores transmisiones que tiene un carácter general en Andalucía del 7% sobre precio o valor de referencia. Cualquier caso especial y/o reducción/exención de este impuesto es establecido por la Junta de Andalucía (consultar en juntadeandalucia.es/organismos/economiahaciendayfondoseuropeos/areas/tributos-juego/tributos/paginas/impuestos-cedidos-transmisiones.html).
4.F.I.A. (Ficha Informativa Abreviada) a disposición del consumidor. (Decreto 218/2005, de 11 de octubre, por el que se aprueba el Reglamento de información al consumidor en la compraventa y arrendamiento de viviendas en Andalucía).
